LIFE STYLE
ライフスタイル


共働き夫婦の家
新婚夫婦・共働き夫婦のご家族
OUTLINE
仕様
-
家族構成 夫婦
-
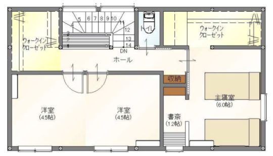
間取り 3LDK
-
月々支払 39,860円
エリア | 奈良市 |
---|---|
工法 | 木造軸組工法 |
施工床面積 | 88.62㎡ |
プラン | 27坪プラン |

RECOMMEND
設計士からの声
-
こんなご家族へおすすめ!
家族の人数はまだ決まっていないけど、広々としたLDKで家族全員がくつろげる住まいが欲しい、アウトドアグッズの収納場所や在宅ワークスペースが欲しい、室内干し・食品の収納スペースが欲しい、朝の準備を楽にしたい――これらを備えた快適な生活を送りたいご家族におすすめです。
-
こんなご家族へおすすめ!
将来の将来の老後資金を考えて若いうちに マイホームの購入を検討されている方
-
こんなご家族へおすすめ!
共働きということもり、賃貸生活でも困ることはないが、賃貸とは違って自分たちの資産形成につながるマイホーム購入を検討したい方